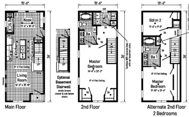
Accessory Dwelling Units
Extend, enhance and beautify your living space
More Space, More Life - Beyond The Main House
An Accessory Dwelling Unit (ADU) is a secondary housing unit on the same property as a primary residence. These versatile spaces, often called in-law suites, or backyard cottages, offer numerous benefits. They can provide a private residence for family members, generate rental income, or serve as a dedicated workspace or "man cave" / entertainment area, all while enhancing your property's value and flexibility.
Our ADUs are custom-built and cost-effective. Stock models are coming soon. Contact us for details.












